O House
Lucerne, Switzerland
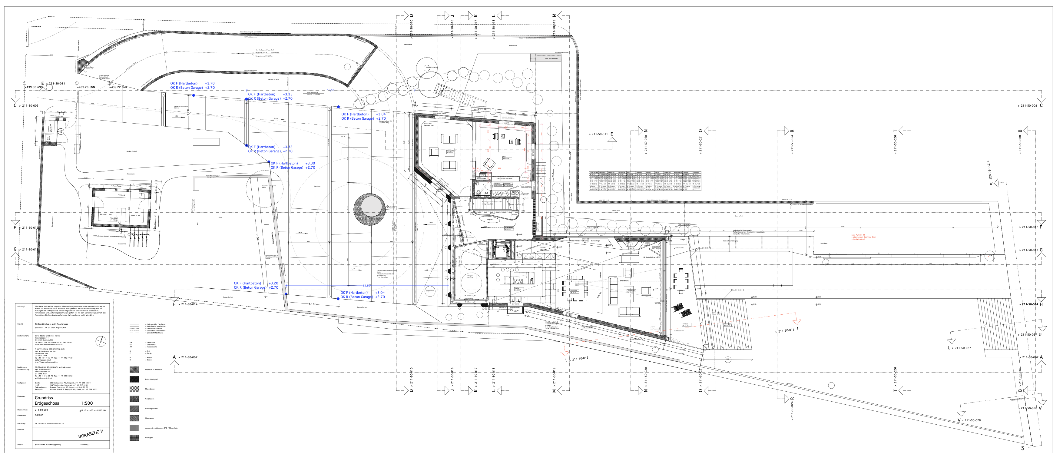
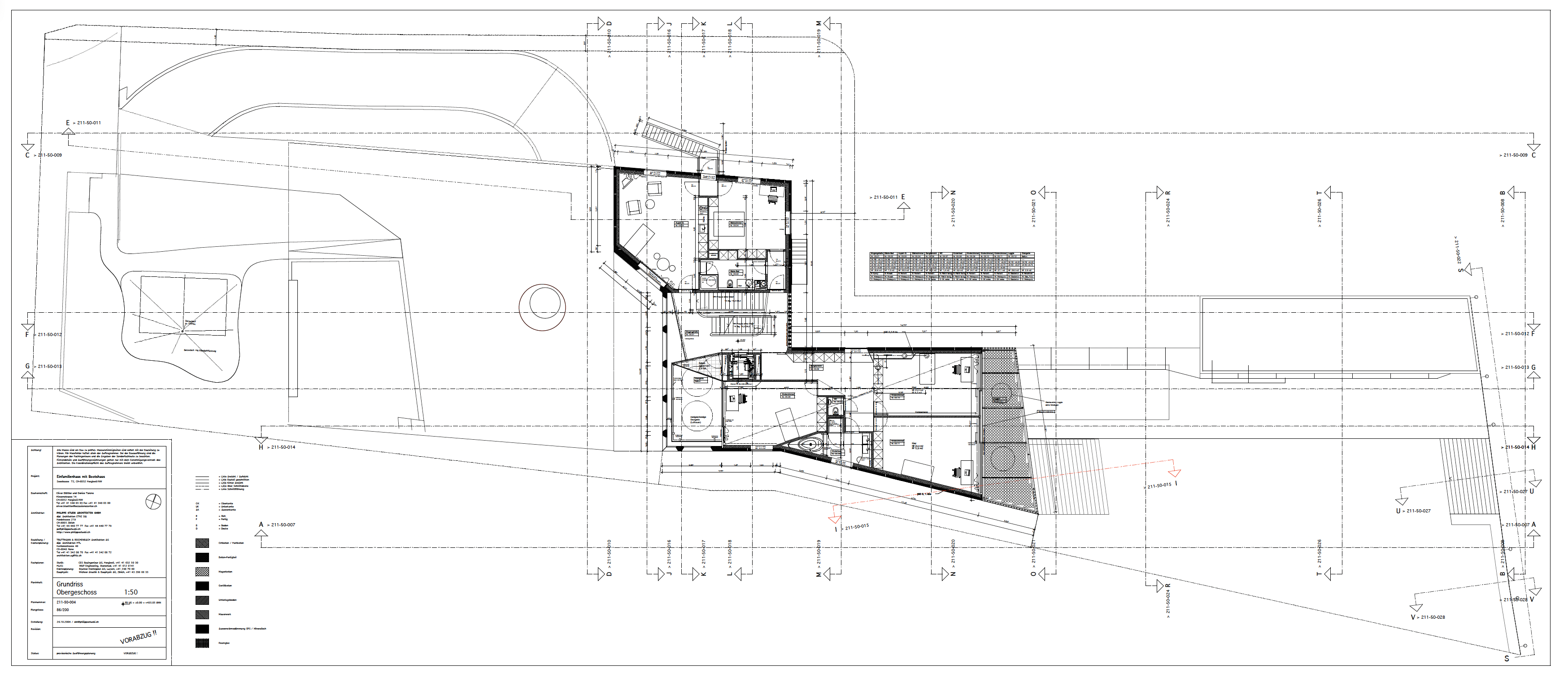
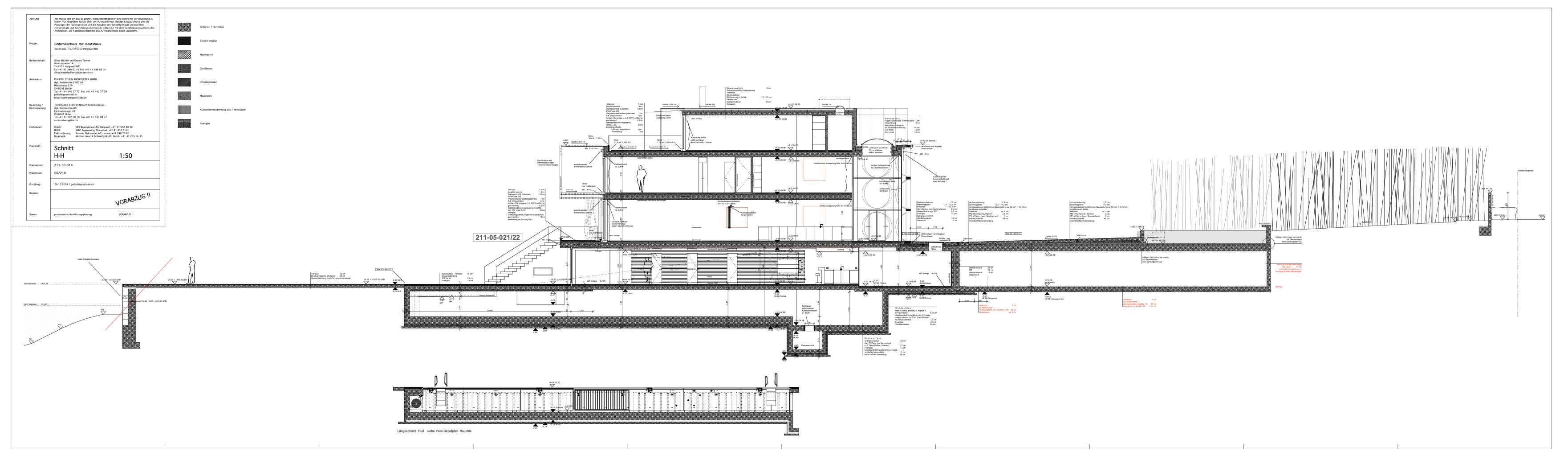
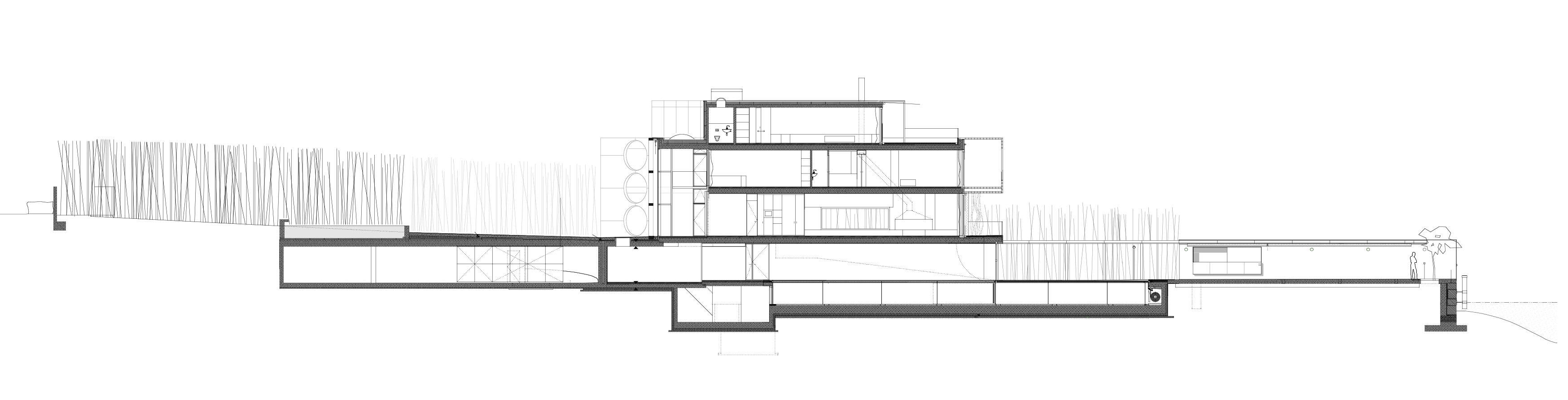
On both, the front and the lake side, this sculptural villa shows very expressive and ornamental facades. Facing Mount Pilatus the white concrete elements are dotted with circular openings that allow glimpses into the two-levelled orangery with its exotic plants, as well as the lounge, the guest tract and the staircase accessed through one of the openings at the ground floor. The lake side with superb mountain views of the Rigi and the Bürgenstock shows off a protruding, glistering loggia made of round glass bricks. Very decorative, such elements are a strong contrast to the rough renderings of the side facades. The basement nestles along the slope and opens into a large fitness area with a 25 meter pool, half inside, half outside, which is inserted in a white Terrazzo plate. This Terrazzo plate extends gracefully from the pool bar located inside along the boathouse made of white tinted, rough jetted concrete into Lake Lucerne.
Project with Eberhard Tröger
Client: Private
Specialists: with Eberhard Tröger (Project director), Gabi Eichenberger, Sven Bestenheider and Christine Heimgartner (Collaborators), Kuhn Truninger Landschaftsarchitekten GmbH, Execution architect: TGS Architects, Photo Credit: Dominique Marc Wehrli


























